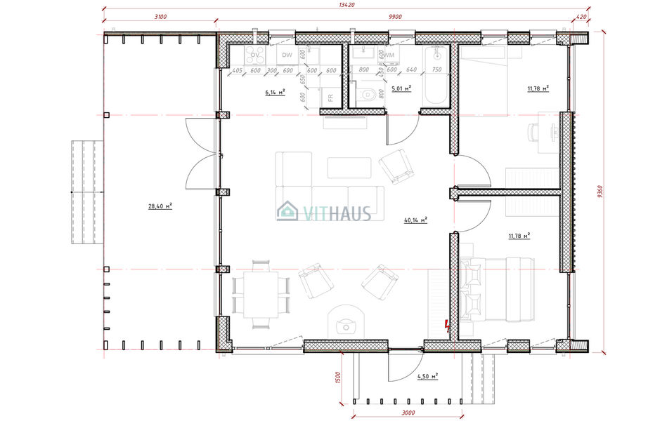
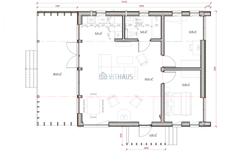
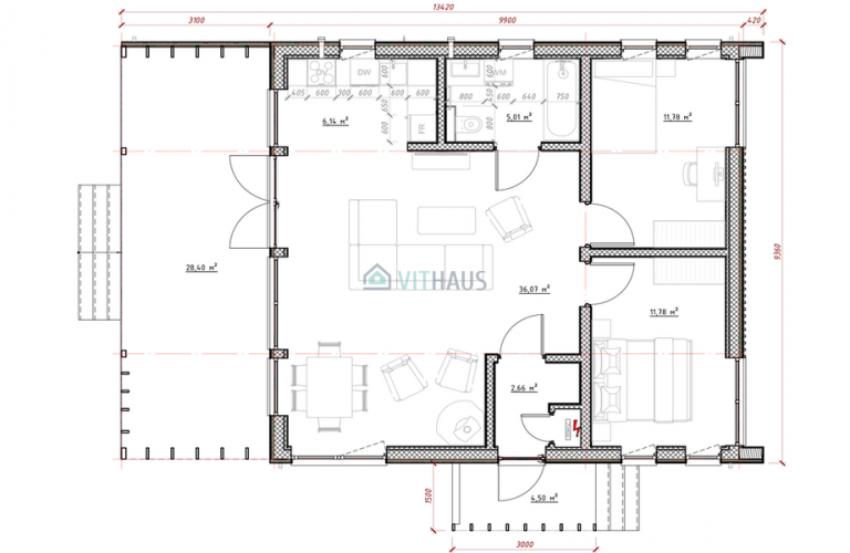
| ПЛОЩАДЬ ЗАСТРОЙКИ: | 125.61 м² |
| ПОЛЕЗНАЯ ПЛОЩАДЬ ДОМА: | 73.40 м² |
| ГАБАРИТЫ ДОМА (ВхШхД): | 4.12×9.36×13.42 м |
| ВЫСОТА ПОТОЛКОВ: | 2.15-3.30 м |
| ЖИЛЫХ КОМНАТ: | 2 |
| ПЛОЩАДЬ ВЕРАНДЫ: | 28.40 м² |
| ПЕРИОД ПОСТАВКИ: | 180-360 дней |
|---|
Крыша: 379 мм = 6,79 м2 K/W, U = 0,147
Стены: 309 мм = 5,25 м2 K/W, U = 0,190
Пол: 294 мм = 5,08 м2 K/W, U = 0,197
Окна: деревянный профиль 78 мм, U = 1,00

серый графит RAL 7024, матовый – 20 мм. Вставки под окна из натурального дерева – облицовка сосна, серый графит RAL 7024 – 20×145 мм.
отделаны деревянной вагонкой из сосны , покрытие — SIKKENS, цвет — белый, — 20×145 мм;
Электропроводка скрыта (в раме). Прокладка кабеля в стенах выполнена в металлической гофре с изоляцией из ПВХ.
Электропроводка выполнена кабелем FRLS:
– осветительный кабель Fil Cu 3×1,5 мм;
— разъёмы кабельные Fil Cu 3×2,5 мм;
— кабель электрический нагревательный Fil Cu 3×4 мм;
— кабель для варочной панели и духовки Fil Cu 5×4 мм.
Розеточные группы двухпозиционные, на керамической основе.
Вводной выключатель – трёхполюсный выключатель 25А категории В. Освещение – автоматический выключатель 10А, бытовые розетки – автоматический выключатель 16А, на кухонной плите, розетки во влажных помещениях – дифференциальный выключатель.
Обустройство кухни (для прокладки коммуникаций): выводы водопровода и канализации; выход для мойки; вывод электрического кабеля для подключения кухонной плиты, холодильника, вытяжки.
Возможно дополнительное изготовление:
крыльцо, лестница, терраса, веранда.
VITHAUS, 2017-2025
GruZZ Creative Studio